品牌:GESSI
产品描述
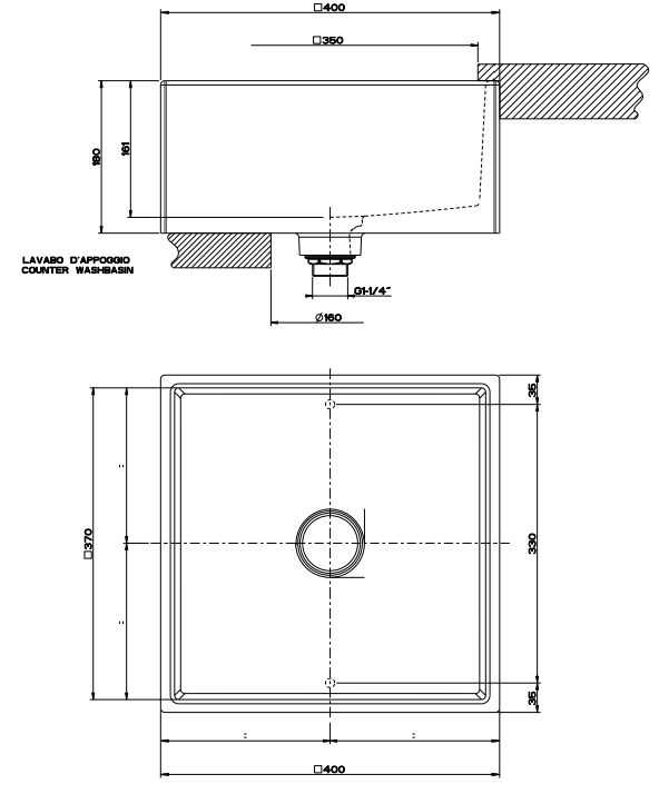
陶瓷中的防洗脸盆,没有溢出的废物。包括陶瓷塞废物。用于柜台安装下固定基特姆 R3773 所需
EDGE
CLARIDGE
ATELIER
ZORA
ZEPPELIN
ZANZIBAR
YINYANG
YAKUSUGI