首页
销售品牌
项目案例
服务中心
关于我们
新闻中心
陈列室
联系我们
人才招聘
2411568980
软装与设计
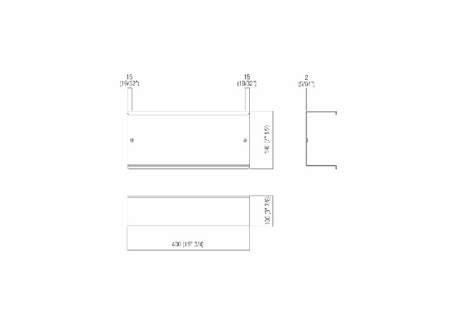
AMC20923
品牌:
AGAPE
产品描述
产品尺寸:
相关产品
EDGE
CLARIDGE
ATELIER
ZORA
ZEPPELIN
ZANZIBAR
YINYANG
YAKUSUGI